
氣動球閥主要性能規范
公稱通徑DN(mm) | 15-250 |
公稱壓力PN(MPa) | 1.6 |
公稱壓力PS(MPa) | 強度試驗 | 2.4 |
密封試驗 | 1.76 |
材料\材料代號 | C | P | R |
主要零件 | 閥體 | WCB | ZG1Cr18Ni9Ti | ZG0Cr18Ni12Mo2Ti |
蝶板 | 2Cr13 | 1Cr18Ni9Ti | 1Cr18Ni12Mo2Ti |
閥桿 | 2Cr13 | 1Cr18Ni9Ti | 1Cr18Ni12Mo2Ti |
密封圈 | 增強聚四氟乙烯 對位聚苯 |
填料 | 聚四氟乙烯 柔性石墨 |
適用工況 | 適用介質 | 水、蒸汽、油品 | 硝酸類 | 醋酸類 |
適用溫度 | -28℃~300℃ |
執行器 | 型號 | BAW系列、GT系列、SW系列 |
氣源壓力 | 0.4-0.7Mpa |
氣動球閥訂購氣動閥門產品須知
1、請在訂貨時提供詳細口徑規格、交貨地地、交貨時間。
2、根據管道需要,決定選用往復式(二位開關式)或彈簧復位式(常閉或常開式)。
3、可選配控制附件:(1)單電控電磁閥(斷電進常閉或常開),(2)雙電控電磁閥(開關式),(3)閥位開關回訊器,(4)氣源處理三聯件。特殊使用環境(易燃易爆場合),何選防爆型。
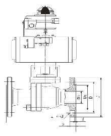
Q641F-16型氣動球閥主要尺寸及執行器配置
公稱通徑DN(mm) | 尺寸(mm) | 執行器型號 |
L | D | D1 | D2 | b | f | Z-Φd |
15 | 108 | 95 | 65 | 45 | 14 | 2 | 4-14 | GTD52/GT63K |
20 | 117 | 105 | 75 | 55 | 14 | 4-14 | GT63/GT63K |
25 | 127 | 115 | 85 | 65 | 14 | 4-14 | GT63/GT83K |
32 | 140 | 135 | 100 | 78 | 16 | 4-18 | GT83/GT83K |
40 | 165 | 145 | 110 | 85 | 16 | 3 | 4-18 | GT83/GT110K |
50 | 178 | 160 | 125 | 100 | 16 | 4-18 | GT83/GT110K |
65 | 190 | 180 | 145 | 120 | 18 | 4-18 | GT110/GT127K |
80 | 203 | 195 | 160 | 135 | 20 | 8-18 | GT127/GT127K |
100 | 305 | 215 | 180 | 155 | 20 | 8-18 | GT127/GT160K |
125 | 256 | 245 | 210 | 185 | 22 | 8-18 | GT160/GT190K |
150 | 394 | 280 | 240 | 210 | 24 | 8-23 | GT190/GT210K |
200 | 457 | 335 | 295 | 265 | 26 | 12-23 | GT254/BAW20S |
250 | 533 | 405 | 335 | 320 | 30 | 12-25 | AW17/AW20S |